45’x48’ Floor Layout with Section & Elevation in DWG Format
Description
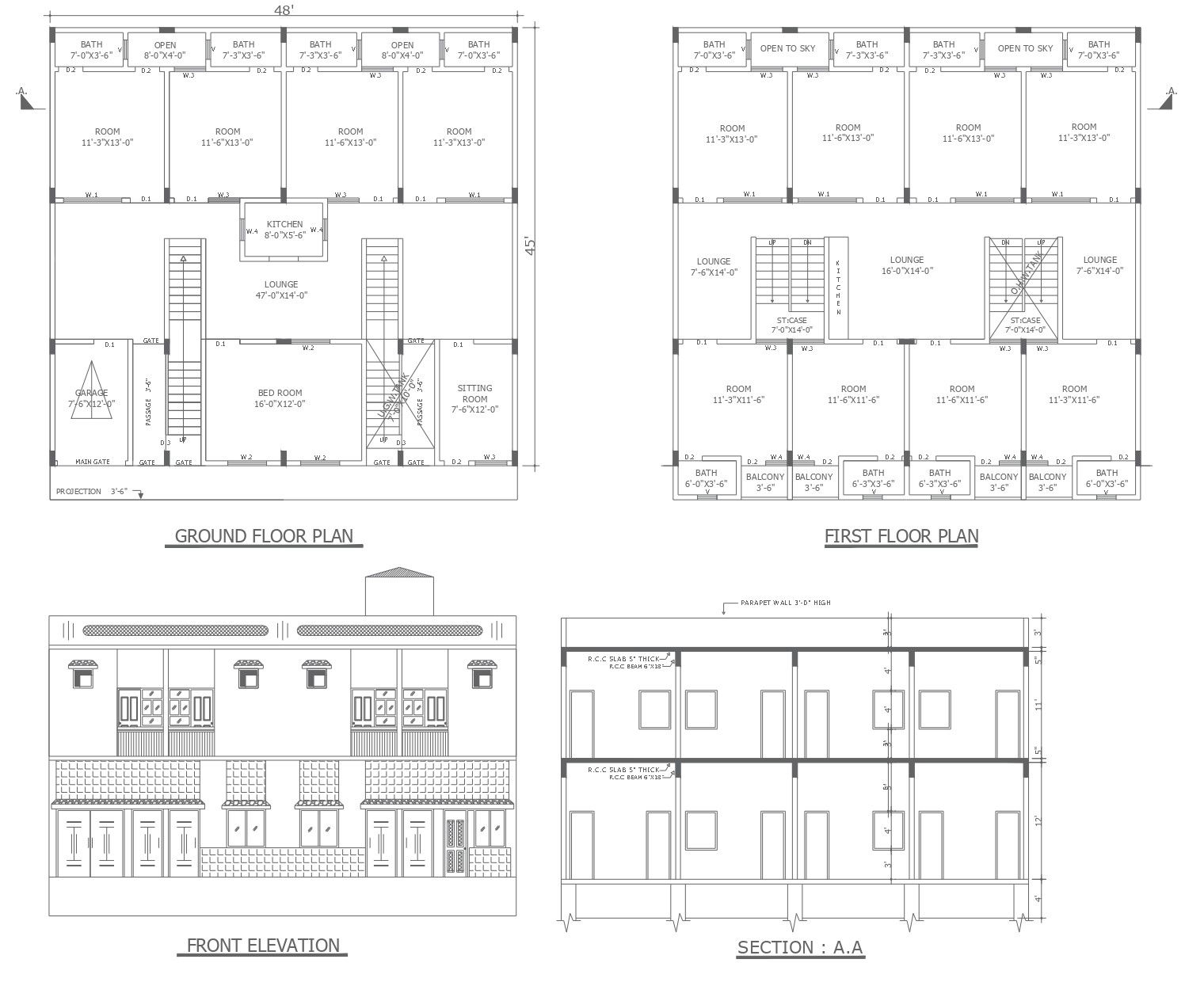
Explore the intricacies of a 45'x48' Residential House with this comprehensive AutoCAD drawing in DWG file format. The floor plan detail unveils the spatial arrangement of rooms and areas, providing a clear understanding of the layout. Delve into the front elevation detail, capturing the aesthetic charm and architectural elements that define the exterior of the residential building. Additionally, the section detail presents a vertical slice through the structure, offering insights into its internal composition. These CAD files serve as a valuable resource for architects, designers, and enthusiasts, providing a closer look at the residential design process. Download this DWG file to gain access to a wealth of information encapsulated in the meticulous cad drawing, facilitating a deeper understanding of the 45'x48' Residential House's design nuances
Uploaded by:
K.H.J
Jani

