Residential House Design dwg file
Description
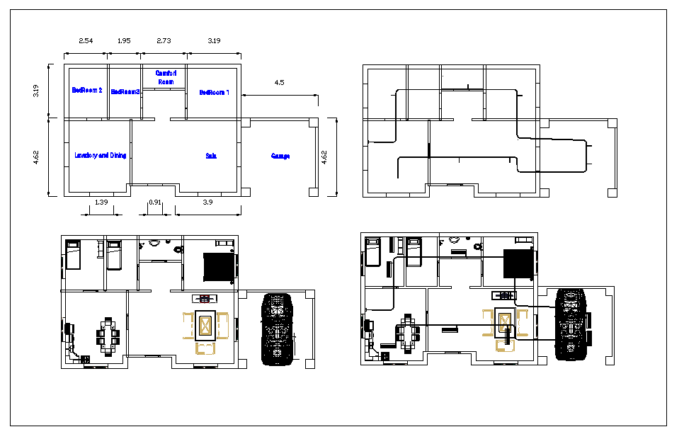
Residential House Design dwg file.
Residential House Design that includes layout dimension top view, furniture layout, electrical piping, furniture with electrical piping and detailing of bedrooms, comfort room, lavatory and dinning, hall, garage and much more of residential house.
Uploaded by:

