House plan dwg file
Description
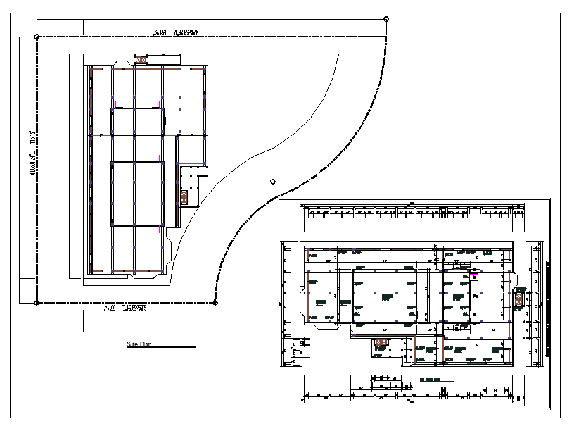
House plan with floor plan and site plan .floor plan showing 3 bed room kitchen living room garage Laundry patio and entry.floor deck roof deck and 1 st floor storage site plan showing drive way exterior and interior of ceiling and all details with measurements.
Uploaded by:
manveen
kaur

