AutoCAD Bedroom DWG Plan with Wall Elevations and Furniture Details

AutoCAD Bedroom DWG Plan with Wall Elevations and Furniture Details
Profile

Uploaded by:

Liam

White

Description

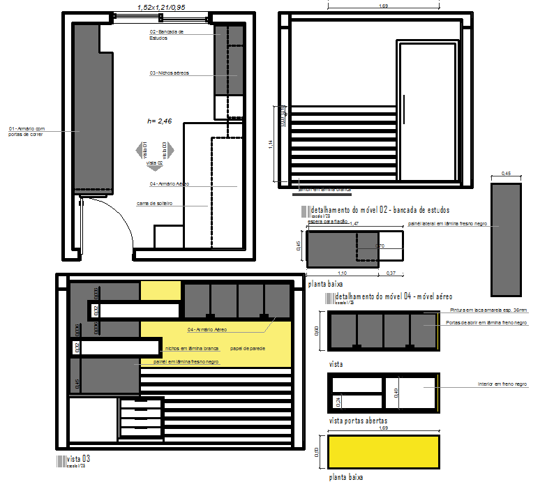
This AutoCAD Bedroom DWG drawing provides a detailed 2D layout of a modern bedroom design, including precise plans, elevations, and furniture placement. The drawing showcases the arrangement of study tables, wardrobes, ceiling panels, and storage units, clearly marked with dimensions for accurate execution. The design also includes wall detailing, highlighting material finishes, color specifications, and elevation markings to ensure aesthetic and functional accuracy.

The DWG file is ideal for interior designers, architects, and builders aiming to create ergonomic and visually appealing bedroom spaces. It presents detailed measurements such as a 1.52m-wide wardrobe, 2.46m room height, and modular furniture setups optimized for compact residential interiors. The plan also includes sectional details of overhead storage units, study desks, and wall-mounted cabinets. Compatible with AutoCAD, Revit, and SketchUp, this file helps professionals and students visualize practical bedroom layouts with efficient space utilization. Download this DWG drawing to enhance your next interior design project with ready-to-edit templates and realistic spatial planning.

Profile

Uploaded by:

Liam

White

find Latest

Related Files

WhatsApp Chat