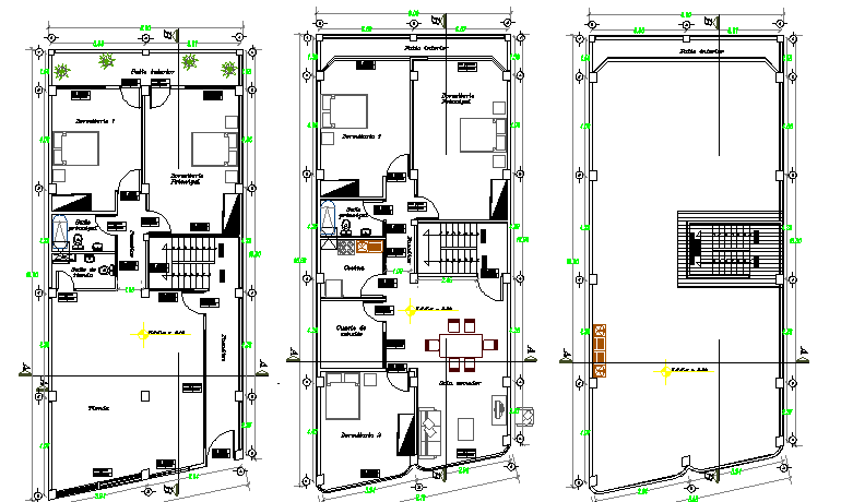
One Family House Design and Architecture Plan dwg file
Description
One Family House Design and Architecture Plan dwg file.
One Family House Design and Architecture Plan that includes detailed view of structure details like hall, kitchen, living room, bedrooms, toilets and bathrooms, terrace, furniture details, guest room and much more of house design.
Uploaded by:

