House plan 2D cad drawing with living room and kitchen layout
Description
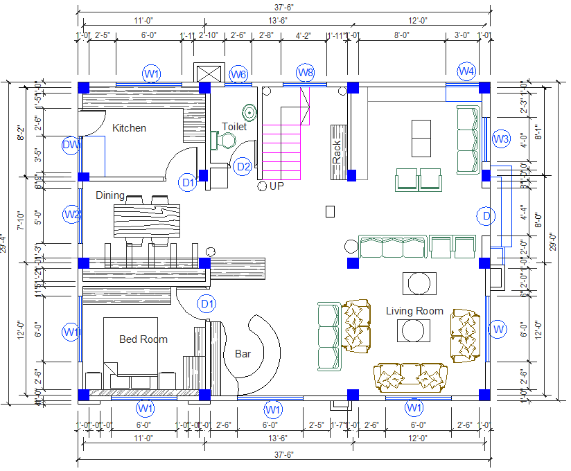
This house plan 2D cad drawing features a complete residential layout designed for practical living and aesthetic comfort. The plan includes a spacious living room, dining area, bedroom, kitchen, bar, and a common toilet, carefully arranged to optimize space utilization. The DWG file offers accurate dimensions, ensuring the design can be used for real-world residential construction or conceptual presentations. With well-labeled rooms, door and window placements, and furniture layouts, this CAD design provides a clear and detailed architectural representation for designers and architects.
The drawing also demonstrates interior functionality with thoughtful zoning between private and social areas. Ideal for architectural students, civil engineers, and home planners, this AutoCAD house plan is useful for learning residential design standards and layout planning. It can serve as a perfect reference for both 2D drafting and 3D visualization. The clarity and precision in linework make it suitable for documentation, blueprint generation, and project planning. Download this house plan CAD drawing to explore a professional residential layout ready for implementation and modification.
Uploaded by:
sunny
chauhan

