Two Family Housing Residency Architecture Layout and Section Details dwg file
Description
Two Family Housing Residency Architecture Layout and Section Details dwg file.
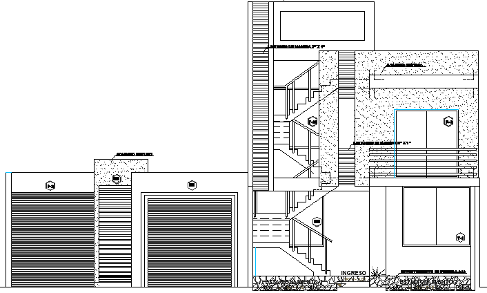
Two Family Housing Residency Architecture Layout and Section Details that includes a detailed view of footing details, roof plan, staircase section, wall design and construction and much more of house design.
Uploaded by:

