House Design 2D CAD Drawing with Plan and Front View Details
Description
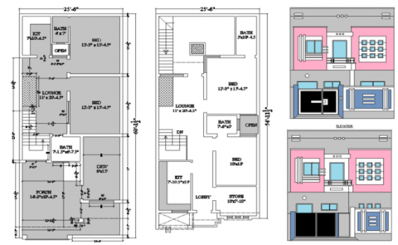
This 2D house design CAD drawing provides a complete layout suitable for residential planning and architectural drafting work. The file includes detailed floor plans that show room arrangement, door and window positions, circulation space, and staircase placement. The drawing also contains a clear front view elevation, which helps in understanding the external appearance and facade style of the building. The layout is drafted with proper reference lines, symbols, measurement indications, and annotation notes, making it practical for designing and construction-level understanding.
This CAD file is useful for architects, civil engineers, interior designers, contractors, builders, and students preparing working drawings and presentation layouts. The file is compatible with AutoCAD and similar drafting software, which allows users to edit, modify, and customize the plan based on design needs and project requirements. The drawing helps in saving drafting time, improving workflow accuracy, and supporting design development from concept to documentation stage. Download this house design CAD drawing to enhance professional planning,g, drafting, and building design work.

Uploaded by:
john
kelly

