Three Flooring Housing Project Floor Plan dwg file
Description
Three Flooring Housing Project Floor Plan dwg file.
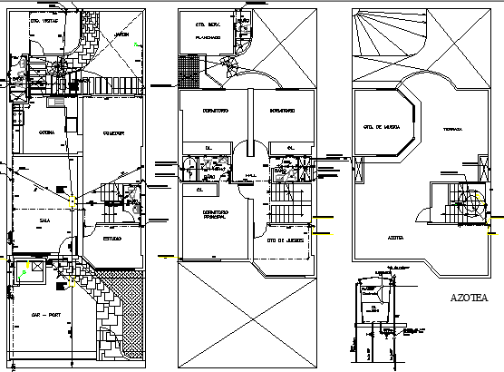
Three Flooring Housing Project Floor Plan that includes a detailed view of ground floor, first floor, top floor, main entry door, family hall, living room, kitchen, dining area, passage, balcony, laundry area, bathroom and toilets and much more house floor plan.
Uploaded by:

