Two flooring housing project dwg file
Description
Two flooring housing project dwg file.
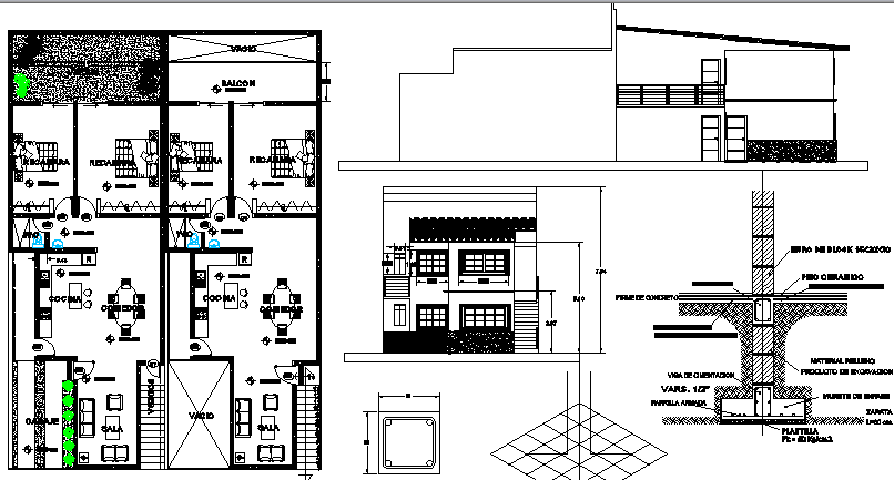
Two flooring housing project that includes detailing view of elevation with doors and window view, balcony view, staircase room, constructive details of flooring, column, mini garden, main entry door,, family hall, kitchen, dining area, terrace and much more of house project.
Uploaded by:

