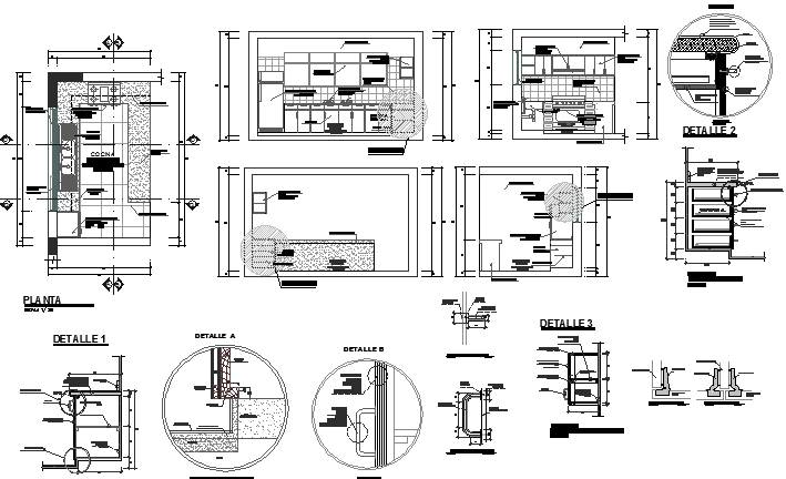
Kitchen constructive details of housing building dwg file
Description
Kitchen constructive details of housing building dwg file.
Kitchen constructive details of housing building that includes a detailed view of wall construction, column construction, beam construction details, floor details, roof construction details and much more of kitchen project.
Uploaded by:

