Single family house architecture layout plan details dwg file
Description
Single family house architecture layout plan details dwg file
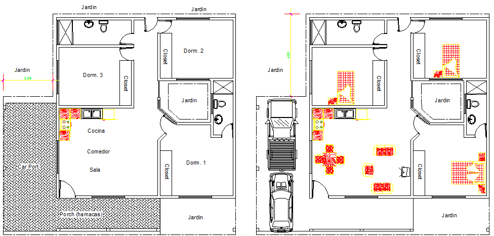
Single family house architecture layout plan details that includes a detailed view of main entry door, family hall, living room, kitchen, dining area, bedroom, toilets and bathroom, laundry area, passage, terrace and much more of single family house layout details.
Uploaded by:

