Extended Family House Layout with Multi Level Modern Floor Plans
Description
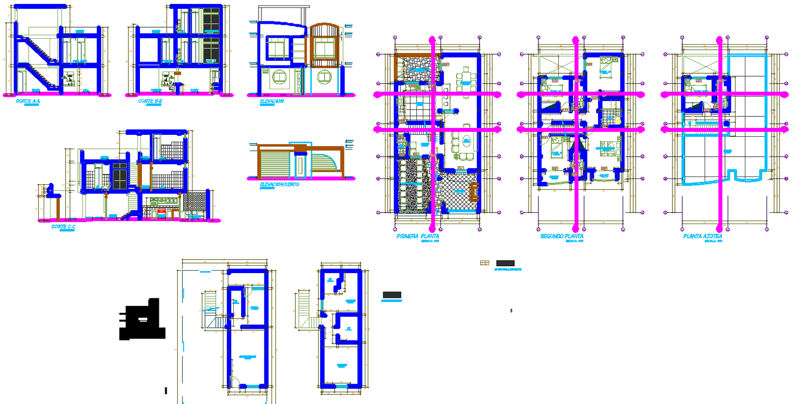
This extended family house DWG file features a complete architectural layout created for modern multigenerational living. The drawing includes detailed first-floor, second-floor, and roof plan designs with functional zoning for bedrooms, living areas, dining spaces, kitchen layouts, and family gathering zones. The plan follows a clear structural grid with columns, walls, and circulation paths precisely marked. Staircases are shown in multiple sectional drawings, offering clarity on vertical movement and inter-floor connections. Each room layout includes window locations, door openings, and service areas to support comfortable long-term residence. The design emphasizes privacy, accessibility, and improved spatial flow.
The sectional drawings A-A, B-B, and C-C illustrate interior height differences, stair geometry, slab levels, and wall composition across all floors. The elevation provides a complete exterior representation of the building’s façade, showcasing modern proportions and structural alignment. The layout supports extended families by offering well-distributed rooms, shared living spaces, and private bedroom zones. This DWG file is ideal for architects, civil engineers, interior designers, and builders seeking ready-to-use references for multigenerational home projects. It supports concept development, detailed planning, construction documentation, and modern residential architecture.

Uploaded by:
Eiz
Luna

