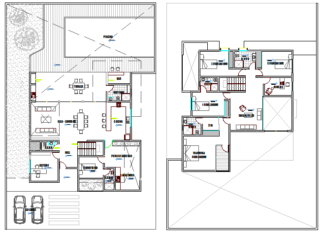
Floor plan architecture layout of two flooring house dwg file
Description
Floor plan architecture layout of two flooring house dwg file.
Floor plan architecture layout of two flooring house that includes a detailed view of basement car parking area, main entry door, family hall, living room, kitchen, dining area, bedroom, master bedroom, passage, laundry area, terrace, balcony, toilets and bathroom, indoor staircase and much more of house floor plan.
Uploaded by:

