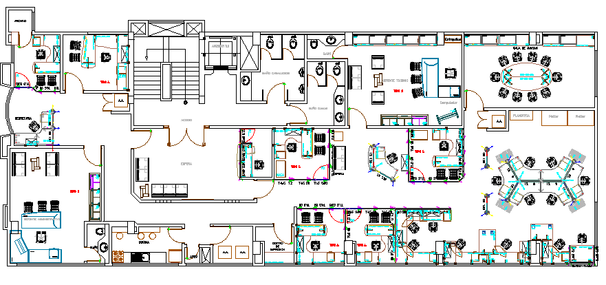
Corporate office architecture layout plan details dwg file
Description
Corporate office architecture layout plan details dwg file.
Corporate office architecture layout plan details that includes a detailed view of informative commercial, reception, entrance area, toilets for general and staff, conference hall, waiting area, meeting room, inquiry desk, general hall, kitchen, dining area, secretory room, reunion room, head offices and much more of corporate office details.
File Type:
DWG
File Size:
925 KB
Category::
Interior Design
Sub Category::
Corporate Office Interior
type:
Gold
Uploaded by:

