Single family house architecture layout plan dwg file
Description
Single family house architecture layout plan dwg file.
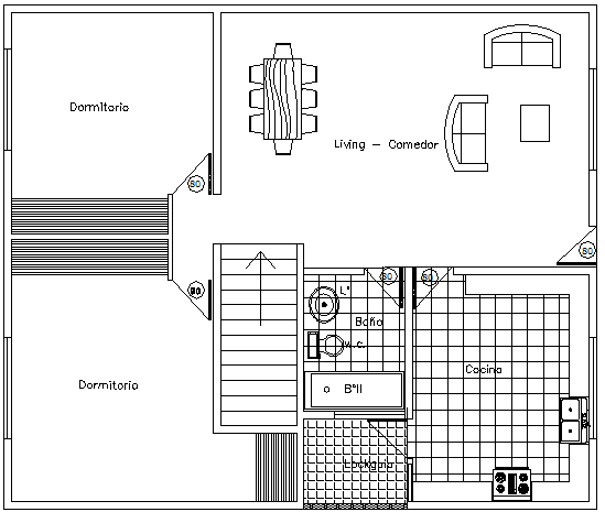
Single family house architecture layout plan that includes a detailed view of main entry door, family hall, living room, kitchen, bedroom, toilets and bathroom, passage and much more of house project.
Uploaded by:

