Corporate office architecture layout plan details dwg file
Description
Corporate office architecture layout plan details dwg file.
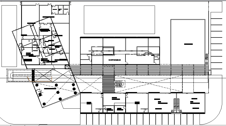
Corporate office architecture layout plan details that includes a detailed view of main entry door, general hall, specialized departmental offices, admin office, operation room control room, conference room, auditorium hall, employee offices, head office, toilets, kitchen, cafeteria, waiting area, sitting area, reception area and much more of office layout plan details.
File Type:
DWG
File Size:
1.7 MB
Category::
Interior Design
Sub Category::
Corporate Office Interior
type:
Gold
Uploaded by:

