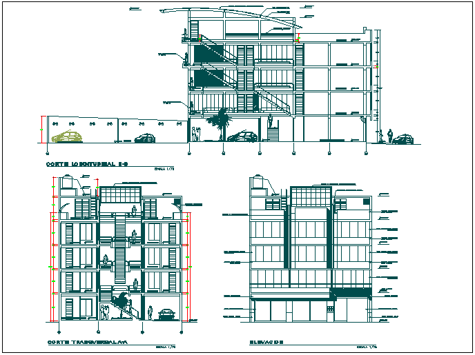
Commercial Building Layout with AutoCAD plan Detail in DWG File
Description
Commercial building plan detail view dwg file, Commercial building plan detail view with specification detail, dimensions detail, elevation and section view detail etc
Uploaded by:

