Smith house detail dwg file
Description
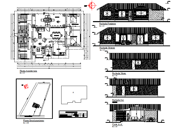
Smith house detail dwg file, with plan, elevation and section detail, north direction detail, front elevation detail, back elevation detail, levlelling detail, dimension detail, naming detail, etc.
Uploaded by:

