Multi family building

Multi family building
Profile

Uploaded by:

Poonam

Description
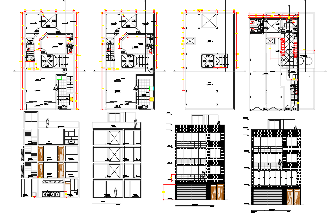
Multi-family building layout plan dwg file. The Architecture Design of Multifamily building Elevation that includes front and top elevation, doors and windows, roof view, terrace view, staircases and much more of Multifamily building design.
Profile

Uploaded by:

Poonam

find Latest

Related Files

WhatsApp Chat