AutoCAD Elevator Section and Plan Layout for Building Projects
Description
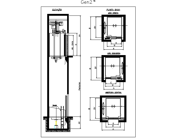
This DWG CAD file presents a comprehensive elevator drawing, complete with both plan and section views, as well as dimensioning, naming conventions, and layout context. The plan view reveals the elevator footprint and spatial relationships, while the section view details the vertical shaft, cabin travel path, and structural elements. Useful for architects, mechanical engineers, and building services professionals, the drawing supports integration into architectural and mechanical systems documentation. The file is compatible with common AutoCAD versions, allowing for adjustments, annotation, and inclusion in broader building projects.
File Type:
DWG
File Size:
104 KB
Category::
Mechanical and Machinery
Sub Category::
Elevator Details
type:
Gold
Uploaded by:

