Elevation Split level house hill side detail dwg file
Description
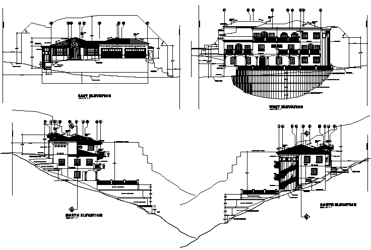
Elevation Split level house hill side detail dwg file, including center line plan detail, section line detail, north elevation detail, south elevation detail, east elevation detail, west elevation detail, etc.
Uploaded by:

