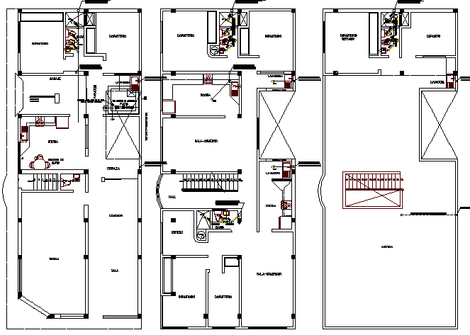
Ground, first and top floor layout plan of multi-level house dwg file
Description
Ground, first and top floor layout plan of multi-level house dwg file.
Ground, first and top floor layout plan of multi-level house that includes a detailed view of mini garden, main entry door, family hall, living area, bedroom, master bedroom, kitchen, dining area, toilets and bathroom, terrace and much more of house floor plan.
Uploaded by:

