Sanitary and electrical installation details of single family house dwg file
Description
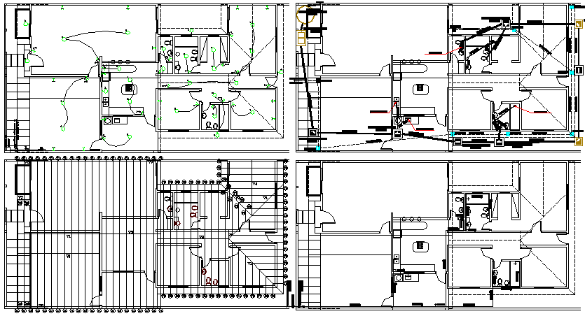
Sanitary and electrical installation details of single family house dwg file.
Sanitary and electrical installation details of single family house that includes a detailed view of cables, supply channel, dual box, sanitary sections, plumbing details, equipment details, doors and ventilation, wash basin, toilet sheets and much more of house project.
Uploaded by:

