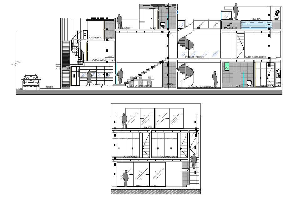
Detail section and elevation Houses three floors plan autocad file
Description
Detail section and elevation Houses three floors plan autocad file, dimesnion detail,naming detail, car parking detail, stair detail, furniture detail in door and window detail, etc.
Uploaded by:

