Elevation and section house room plan detail dwg file
Description
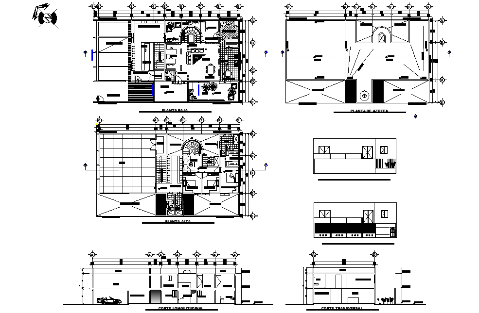
Elevation and section house room plan detail dwg file, north direction detail, front elevation detail, side elevation detail, centre lien detail, dimension detail, naming detail, section A-A’ detail, section B-B’ detail, etc.
Uploaded by:

