Plan and elevation house plan layout file
Description
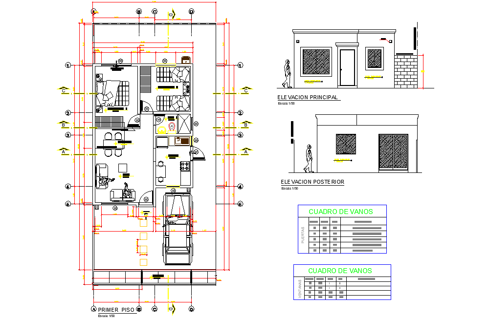
Plan and elevation house plan layout file, centre line plan detail, dimension detail, naming detail, section line detail, front elevation detail, side elevation detail, furniture detail in door, window, table, chair, sofa, bed and cub board detail, car parking detail, etc.
Uploaded by:

