Single Family Home AutoCAD Plan with Elevation and Section Layout
Description
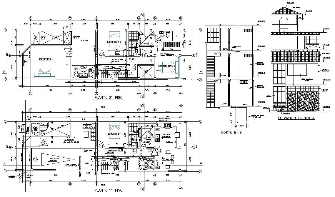
The Single Family Home AutoCAD plan drawing file presents a detailed elevation and sectional layout ideal for residential architectural projects. This file includes the centre line plan, sectional view B-B’, and dimension annotations for accurate design execution. The layout provides furniture placement, door and window detailing, and naming conventions to help visualize the spatial structure of a modern family home. The front elevation showcases exterior proportions and facade balance, while the sectional plan highlights internal floor arrangements, walls, and staircase connections. It is an excellent reference for architects, engineers, and interior designers involved in residential design and space planning.
This AutoCAD drawing file offers comprehensive technical accuracy and visual detailing for single-family home design. It supports dimension verification, elevation alignment, and plan layout referencing, ensuring precision during both the design and construction phases. The drawing also provides insight into structural proportions and aesthetic balance between floors. With clearly labeled elements and well-defined geometry, this plan layout serves as a professional guide for housing projects, civil construction studies, and academic reference. The Single Family Home AutoCAD plan is a must-have for professionals aiming for efficiency, accuracy, and modern architectural clarity.
Uploaded by:

