Structure detail Beam 7 Column section detail
Description
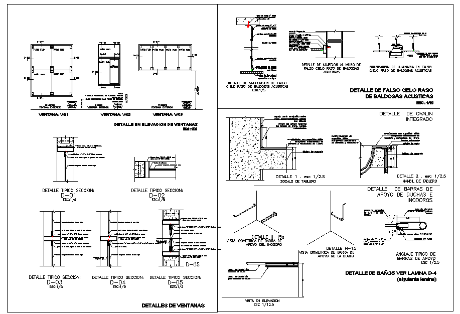
Structure detail Beam 7 Column section detail, detail in elevation of windows, Socket of the same material of the board of 6mm., rounded edges, Coating with solid surface composed basically of aluminum and methacrylate of 12mm. detail of false ceiling of acoustic tiles,
File Type:
DWG
File Size:
3.5 MB
Category::
Structure
Sub Category::
Section Plan CAD Blocks & DWG Drawing Models
type:
Gold
Uploaded by:
zalak
prajapati

