General plan of three bedroom with architectural view dwg file
Description
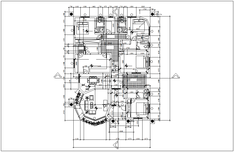
General plan of three bedroom with architectural view dwg file in plan with view of area distribution and view of wall and door and window view and view of bedroom,drawing room,corridor,washing
area and wall and wall support with necessary dimension.
Uploaded by:

