Floor plan of family house with architecture view dwg file
Description
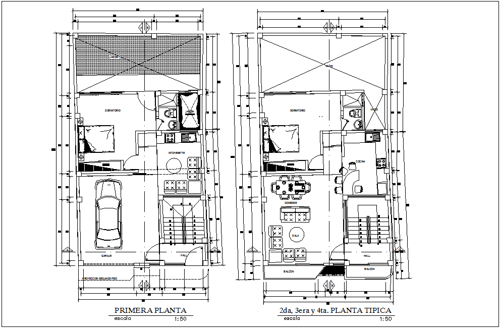
Floor plan of family house with architecture view dwg file in first floor plan with view of parking area,
garden,bedroom and second to fourth floor same plan with view of distribution of area and view of
hall,room,balcony,kitchen and bedroom washing area with necessary dimension.
Uploaded by:

