Guard housing detail elevation, plan and section 2d view layout dwg file
Description
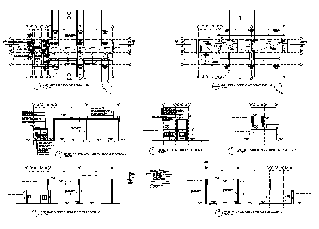
Guard housing detail elevation, plan and section 2d view layout dwg file, dimension detail, section detail, double gate detail, plan view detail, section A-A detail, door and window detail, section B-B detail, wall detail, scale 1:100 detail, front elevation detail, side elevation detail, steel grill detail, entrance gate and emergency gate detail, roof detail, numbering detail, flooring detail, rear elevation detail, naming detail, etc.

Uploaded by:
Eiz
Luna

