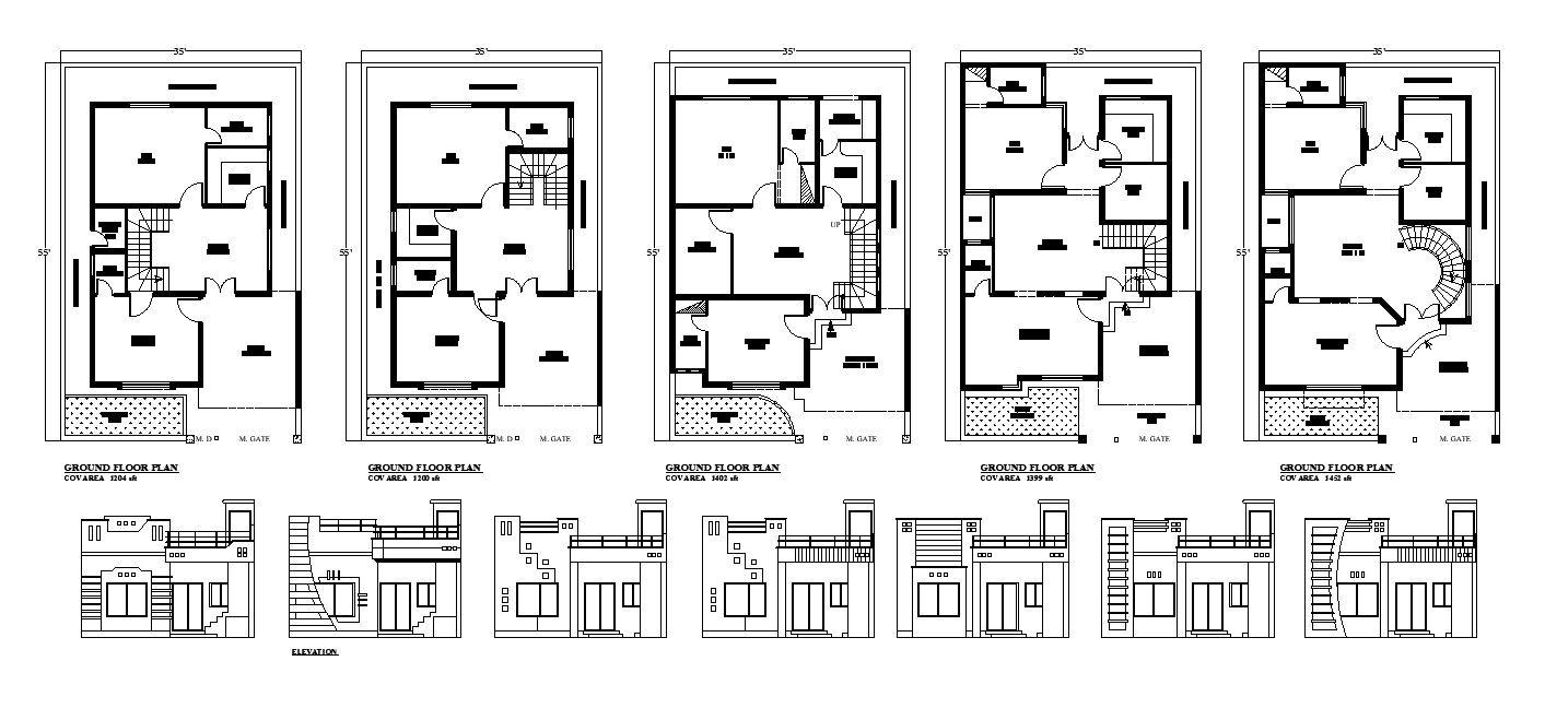
Residential housing structure building layout plan and elevation in autocad format file

Residential housing structure building layout plan and elevation in autocad format file
Profile

Uploaded by:

Eiz

Luna

Description
Residential housing structure building layout plan and elevation in autocad format file, plan view detail, room detail, wall and flooring detail, door and window detail, floor level detail, plan view detail, room dimension detail, staircase detail, riser and thread detail, coverage area detail, front elevation detail, main gate detail, railing detail, dimension detail, etc.
Profile

Uploaded by:

Eiz

Luna

find Latest

Related Files

WhatsApp Chat