Three level house building elevation, section, floor plan and auto-cad details dwg file
Description
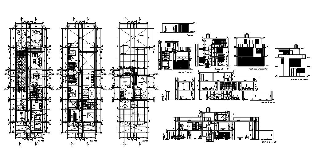
Three level house building elevation, section, floor plan and auto-cad details that includes a detailed view of flooring view, doors and windows view, staircase sectional details, balcony view, wall sections and dimensions details with main entry gate, mini garden, car parking view, main entry house door, drawing room, living room, family hall, kitchen, dining area, indoor staircases, laundry area, balcony, bedroom, master bedroom, toilets and bathroom, indoor doors, furniture details and much more of house project.
Uploaded by:

