Office floors layout plan details with furniture cad drawing details dwg file
Description
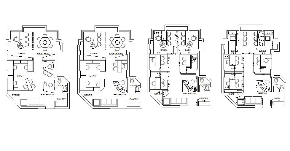
Office floors layout plan details with furniture cad drawing details that includes a detailed view of pantry, store details, reception area, staff details, cabin, furniture layout details, toilet and much more of office details.
File Type:
DWG
File Size:
132 KB
Category::
Interior Design
Sub Category::
Corporate Office Interior
type:
Gold
Uploaded by:

