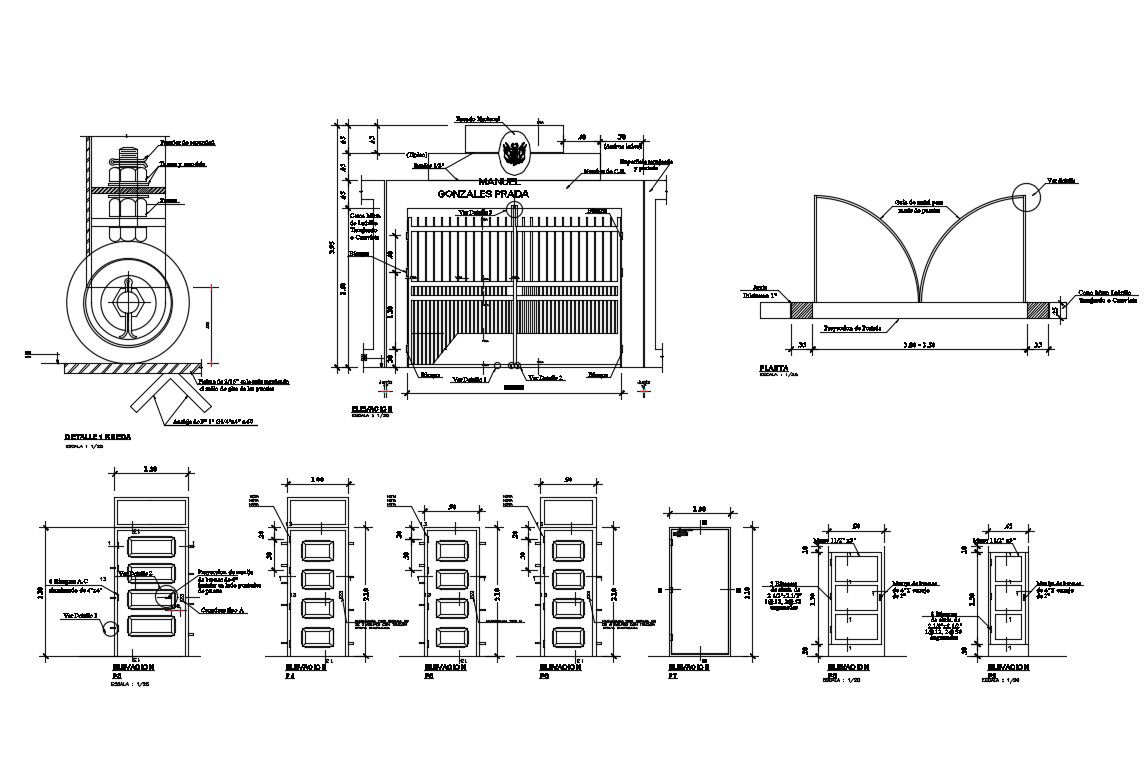
Doors and gate elevation, section and installation cad drawing details dwg file
Description
Doors and gate elevation, section and installation cad drawing details that includes a detailed view of welded plate for grappling the clamp, door elevation details, door section details, double swing handle (with placement accessories), reinforcement rib, expanded metal, ceramic block, ceramic, block, lintel 2 irons, wood cap, frame and much more of door installation details
Uploaded by:

