Two-level residential house elevation and section details dwg file
Description
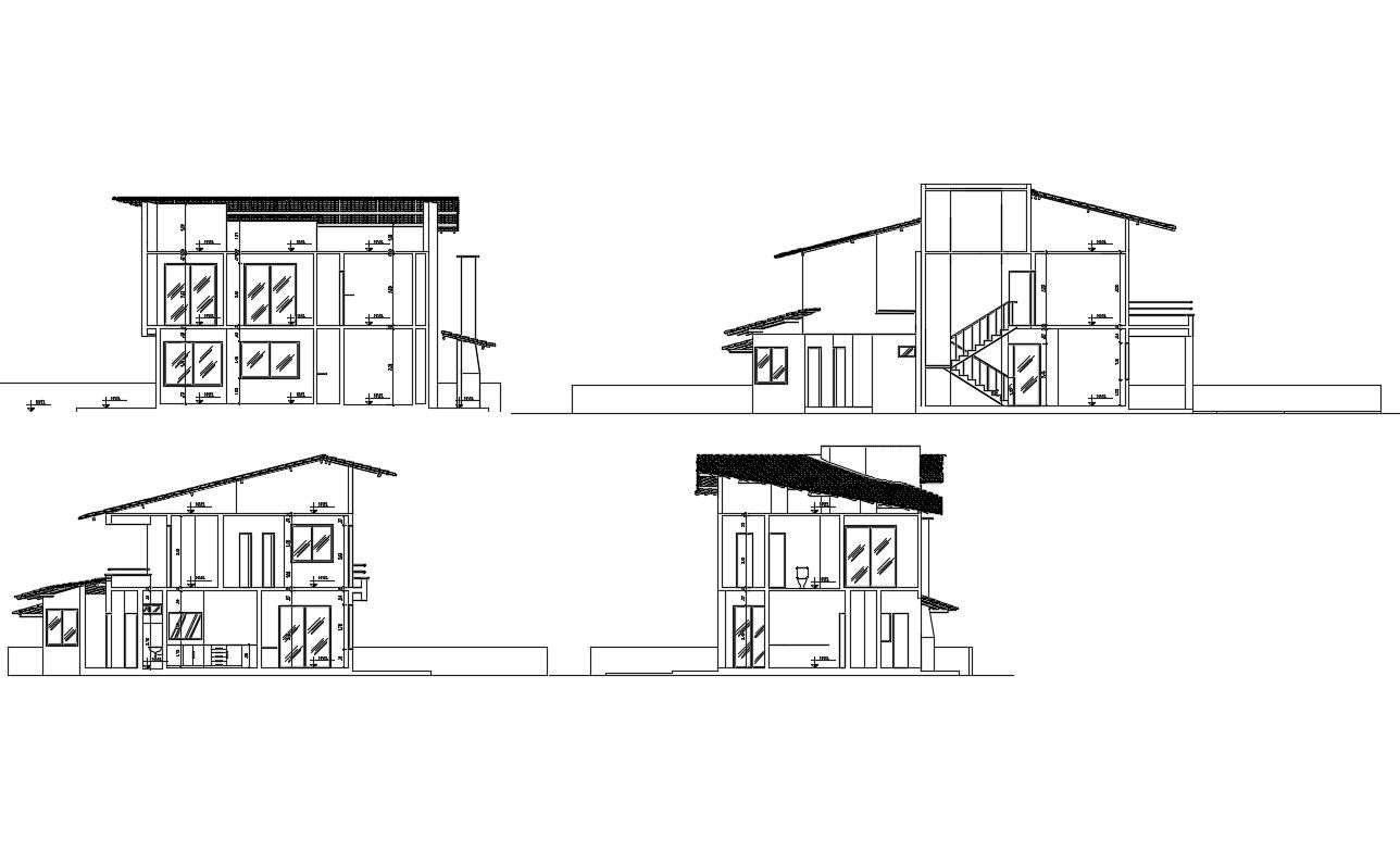
Two-level residential house elevation and section details that includes a detailed view of flooring view, doors and windows view, staircase view, balcony view, wall design, dimensions, roof or terrace view, staircase section details and much more of house details.
Uploaded by:

