House two story elevation and section cad drawing details dwg file
Description
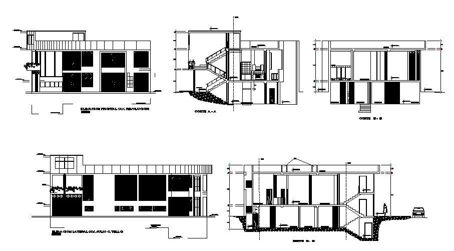
House two story elevation and section cad drawing details that includes a detailed view of flooring view, doors and windows view, staircase view, balcony view, wall design, dimensions, roof or terrace view, staircase sectional details and much more of house details.
Uploaded by:

