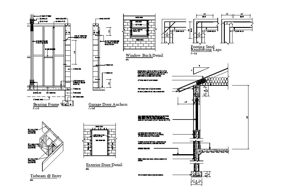
Doors and windows installation and construction details of house dwg file
Description
Doors and windows installation and construction details of house that includes a detailed view of door elevation, window elevation, welded plate for grappling the clamp, door elevation details, door section details, double swing handle (with placement accessories), reinforcement rib, expanded metal, ceramic block, ceramic, block, lintel 2 irons, wood cap, frame and much more of door and window installation details
Uploaded by:

