One family house constructive structure and layout plan cad drawing details dwg file
Description
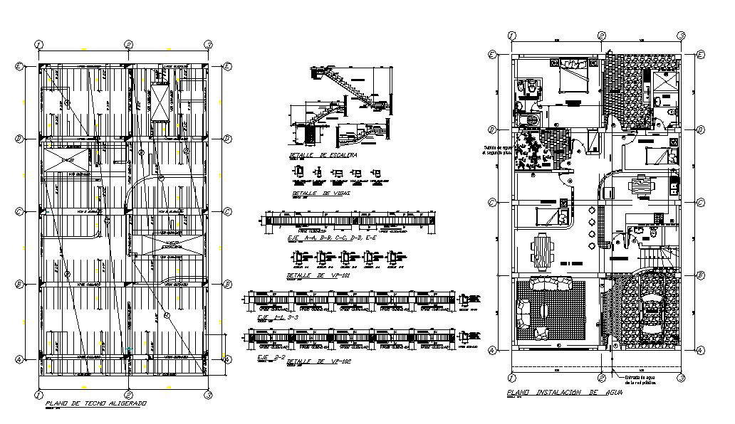
One family house constructive structure and layout plan cad drawing details that includes a detailed view of foundation plan, structure details, floor construction, beam construction, floor wise structure and constructive details with memory of materials, footings details, staircase construction and sectional details, steps details, dimensions, column view, beam construction, main entry house door, drawing room, living room, family hall, kitchen, dining area, indoor staircases, laundry area, balcony, bedroom, master bedroom, toilets and bathroom, indoor doors, furniture details and much more of house project.
Uploaded by:

