Plan of residential house 7mtr x 17.4mtr with different section and elevation in AutoCAD
Description
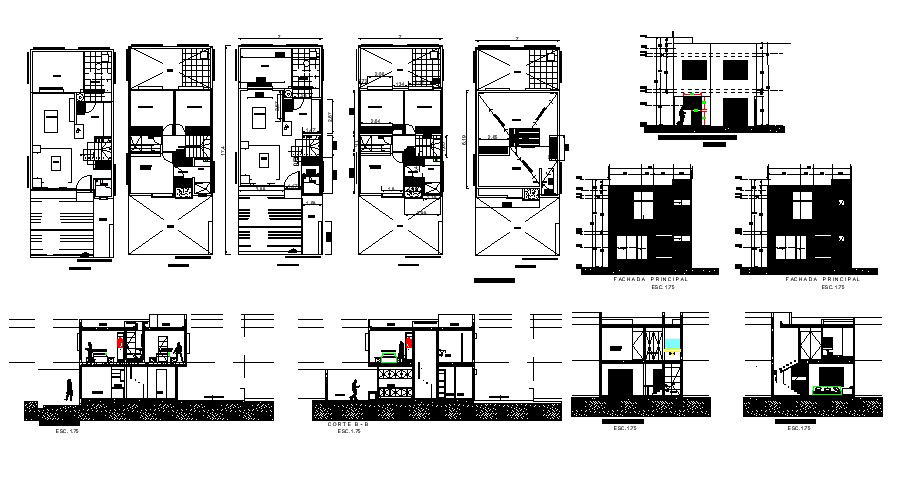
Plan of residential house 7mtr x 17.4mtr with different section and elevation in AutoCAD which provide detail of front elevation, side elevation, back elevation, floor level, detail dimension of the hall, bedroom, kitchen, dining room, bathroom, etc it also gives detail of furniture.

Uploaded by:
Eiz
Luna

