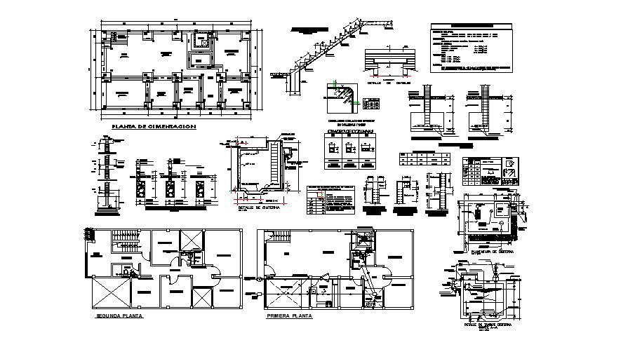
Foundation plan of residential house 8.00mtr x 15.00mtr with detail dimension in dwg file
Description
Foundation plan of residential house 8.00mtr x 15.00mtr with detail dimension in dwg file which provides detail of foundation structure, detail of column footing, detail dimension of the staircase, etc.

Uploaded by:
Eiz
Luna

