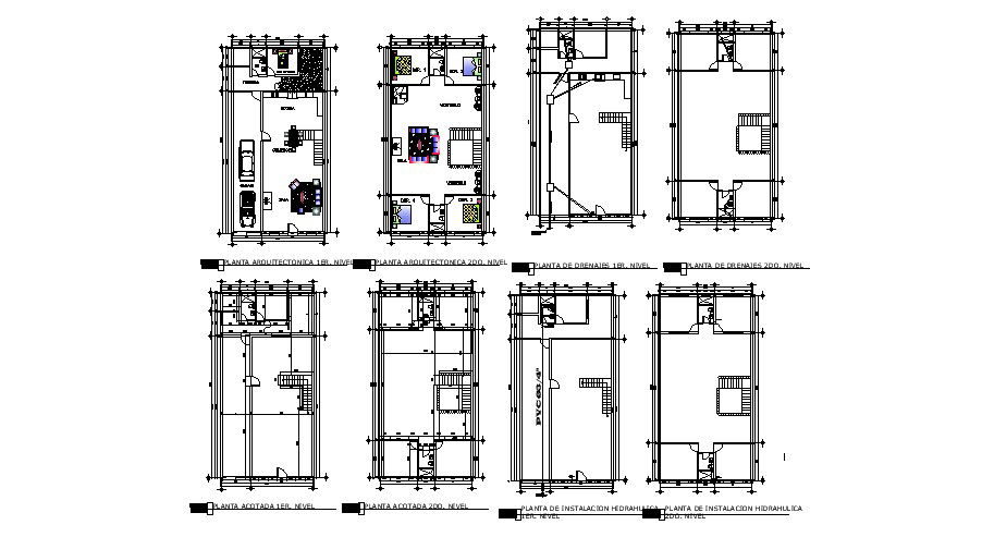
Floor plan of single-family house 13.33mtr x 26.67mtr with detail dimension in dwg file
Description
Floor plan of single-family house 13.33mtr x 26.67mtr with detail dimension in dwg file which provides detail of foundation plan, different floor, detail dimension of the hall, bedroom, kitchen with dining area, bathroom, toilet, parking area, etc.

Uploaded by:
Eiz
Luna

