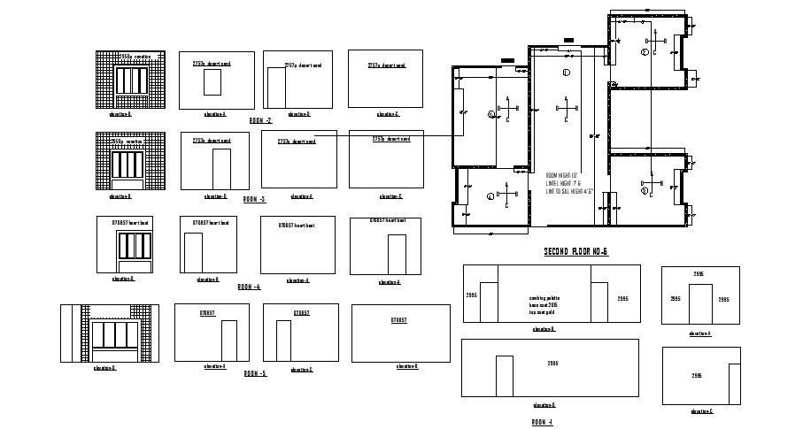
Floor plan of the house with detail dimension in dwg file
Description
Floor plan of the house with detail dimension in dwg file which includes detail of different section, different elevation, detail of room height, lintel height, lint to sill height, detail dimension of doors and windows, etc

Uploaded by:
Eiz
Luna

