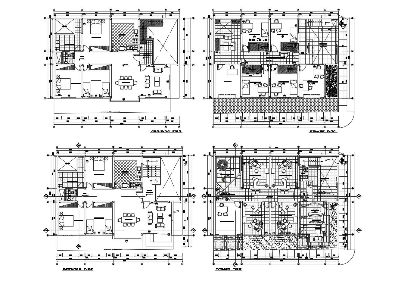
Drawing of multipurpose building 17.35mtr x 11.10mtrt with detail dimension in dwg file
Description
Drawing of multipurpose building 17.35mtr x 11.10mtrt with detail dimension in dwg file which provides detail of hall, bedroom, kitchen with dining area, bathroom, toilet, detail of office area, detail of clinic, etc.

Uploaded by:
Eiz
Luna

