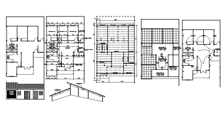
Drawing of house plan 10.20mtr x 13.50mtr with detail dimension in dwg file
Description
Drawing of house plan 10.20mtr x 13.50mtr with detail dimension in dwg file which provides detail of electric layout plan, roof plan, detail of hall, bedroom, kitchen, dining area, bathroom, toilet, etc.

Uploaded by:
Eiz
Luna

