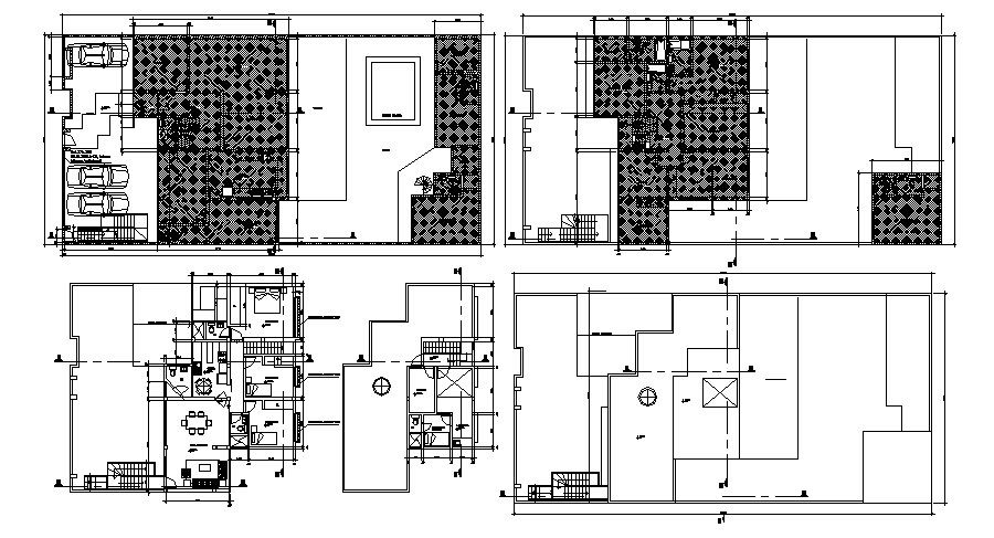
Architectural plan of house design with detail dimension in AutoCAD

Architectural plan of house design with detail dimension in AutoCAD
Profile

Uploaded by:

Eiz

Luna

Description
Architectural plan of house design with detail dimension in AutoCAD which provide detail of drawing room, bedroom, kitchen, dining area, bathroom, toilet, etc it also gives detail of furniture, car parking.
Profile

Uploaded by:

Eiz

Luna

find Latest

Related Files

WhatsApp Chat