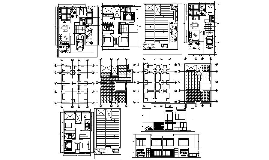
2 storey residential house 8.50mtr x 10.50mtr with detail dimension in dwg file
Description
2 storey residential house 8.50mtr x 10.50mtr with detail dimension in dwg file it includes detail of front elevation, side elevation, floor level, detail dimension of the hall, bedroom, kitchen, dining area, bathroom, toilet, etc it also gives detail of roof plan.

Uploaded by:
Eiz
Luna

