Residential house drawing with elevation details in AutoCAD

Residential house drawing with elevation details in AutoCAD
Profile

Uploaded by:

K.H.J

Jani

Description
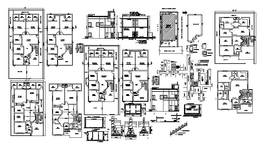
Residential house drawing with elevation details in AutoCAD it includes ground floor plan, first-floor plan, sections, elevations, construction detail, it also includes living room, kitchen, dining room, bedroom, balcony, etc
Profile

Uploaded by:

K.H.J

Jani

find Latest

Related Files

WhatsApp Chat