7.5x29 m House Plan with Dimensions DWG AutoCAD File
Description
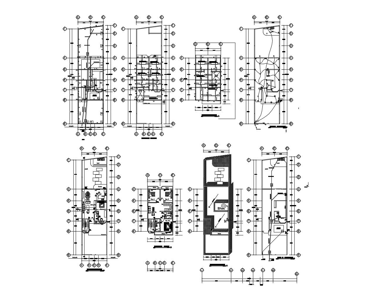
Autocad drawing of house 7.50mtr x 29.00mtr with detail dimension in dwg file which provides detail of drawing room, bedroom, kitchen with dining area, bathroom, toilet, etc it also gives detail of foundation plan, electric layout plan.

Uploaded by:
Eiz
Luna

